AMPLASAMENT
Zona de studiu acoperă o arie de aproximativ 70 ha și se compune din zona de intervenție și zona de influență. Harta poate fi vizualizată în secțiunea Imagini asociate.
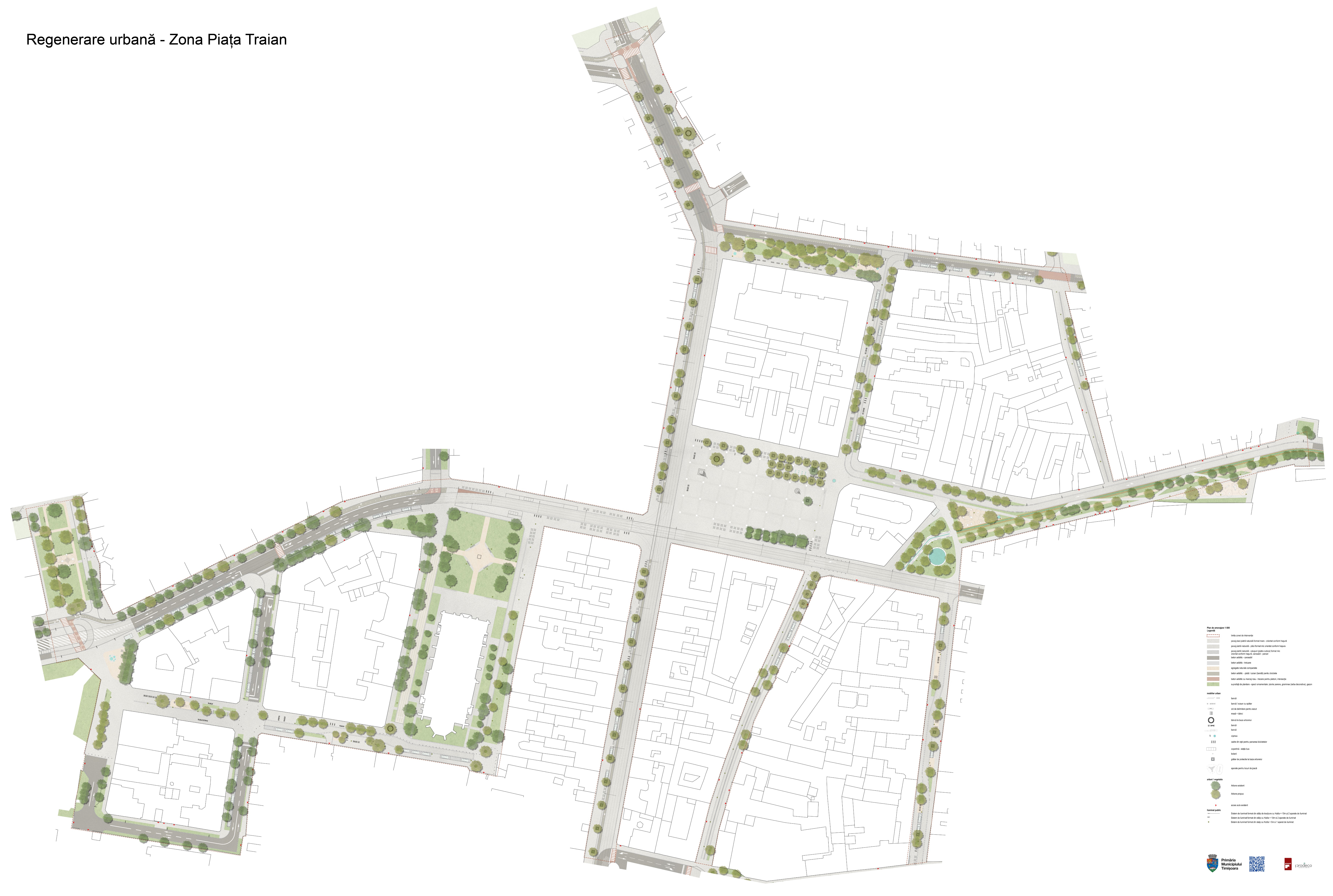
Zona de intervenție acoperă o arie de aproximativ 56.130 mp și include suprafețe aflate în domeniul public: Bd. 3 August 1919 (parțial), Piața Academician Corneliu Miclosi, str. Ion Luca Caragiale, str. Doctor Gheorghe Marinescu, str. Episcop Joseph Nischbach, str. Episcop Joseph Lonovici, Piața Romanilor, Piața Traian, str. Dacilor, str. Ștefan cel Mare, str. Anton Pann, str. Titel Petrescu, str. Costache Negruzzi (parțial), str. Petre Ispirescu, str. Ecaterina Teodoroiu (parțial), str. Zăvoi, Piața Petru Rareș.
În Zona de influență (exterioară zonei de intervenție) se formulează recomandări privind intervențiile viitoare: soluții unitare și funcționale în corelare cu proiectele în curs de elaborare și cu cele viitoare.
SITUAȚIA EXISTENTĂ
Principalele disfuncționalități:
Situația existentă favorizează deplasarea cu mijloace motorizate private, în detrimentul pietonilor, a utilizării bicicletelor și a transportului în comun:
- suprafețe pietonale neatractive, subdimensionate și/sau ocupate de mașini parcate neregulamentar;
- accesibilitate limitată pentru persoane cu dizabilități;
- suprafețe carosabile supradimensionate, delimitate și organizate deficitar, care conduc fie la viteze mari de deplasare, fie la parcarea nereglementată;
- lipsa infrastructurii pentru biciclete / trotinete;
- număr redus de arbori în spațiul public pe unele străzi;
- spații verzi reduse ca suprafață și deficitare d.p.d.v. al accesibilității și tipului de amenajare;
- insuficiența dotărilor urbane - mobilier, locuri de joacă, amenajări pietonale pentru recreere, agrement și promenadă;
- situație deficitară a infrastructurii aferente transportului public: stații și cale de rulare tramvai uzate fizic și moral;
- iluminat public uzat moral, cu consum ridicat de energie;
- absența stațiilor de încărcare pentru vehicule electrice;
- terenuri sub-utilizate în raport cu potențialul dat de poziția lor urbanistică;
- rețea de dotări și echipamente publice (învățământ, cultură, sănătate, sport, agrement, administrație, spații comunitare) insuficient dezvoltată în raport cu necesarul.
OBIECTIVE PRINCIPALE DE AMENAJARE
Calitatea amenajării și funcționalității spațiului public, atractivitatea și siguranța, sau diversitatea ofertelor de loisir sunt indicatori esențiali ai calității vieții în orașe.
Conform documentelor programatice de la nivel european, dezvoltarea mobilității urbane trebuie să devină mult mai puţin dependentă de utilizarea autoturismelor personale, prin schimbarea accentului de la o mobilitate bazată în principal pe utilizarea acestora, la o mobilitate bazată pe mersul pe jos, utilizarea bicicletei ca mijloc de deplasare, utilizarea transportului public de înaltă calitate şi eficienţă, reducerea utilizării autoturismelor personale, concomitent cu utilizarea unor categorii de autoturisme nepoluante.
Studiul vizează creșterea calității mediului construit aferent cartierului Fabric. Accentul cade pe reabilitarea, extinderea și modernizarea rețelei de spații publice și a sistemului de mobilitate care deservesc zona rezidențială și de servicii a cartierului.
Sunt urmărite principiile unei dezvoltări urbane sustenabile, prin favorizarea componentelor pietonale, ciclistice și verzi ale infrastructurii de mobilitate, prin eficientizarea funcțiunilor urbane în raport cu consumul de resurse și de suprafață și prin consolidarea caracterului de centru urban al zonei – orașul atractiv, divers și accesibil.
O miză secundă, ca efect direct al reabilitării infrastructurii publice, este dată de impulsionarea activităților terțiare deja existente în zonă (servicii, comerț, instituții, companii) și de încurajare a instalării unor activități noi, în condițiile în care mixajul funcțional și diversitatea de utilizări sunt văzute ca principale calități ale zonei.
Mai mult decât atât, se deschide posibilitatea suplimentării rețelei de dotări și echipamente publice (educație, sport, sănătate, recreere etc), în prezent o componentă deficitară atât cantitativ, cât și calitativ.
CARTIERE CU SPAȚII SIGURE
1) SIGURE ȘI SĂNĂTOASE
- calmarea și restrângerea traficului auto
- protejarea intersecțiilor
- prioritizarea utilizatorilor vulnerabili
- reducerea emisiilor poluante generate de traficul auto
- plantarea de arbori și vegetație joasă
- iluminat modern și eficient
2) ACCESIBILE ȘI CONFORTABILE PENTRU TOȚI UTILIZATORII
- suplimentarea și îmbunătățirea trecerilor de pietoni
- accesibilizarea spațiului public pentru persoane cu nevoi speciale, persoane în vârstă și copii
- introducerea facilităților pentru bicicliști (piste / benzi / trasee partajate)
- transport în comun accesibil, comod, eficient
3) ATRACTIVE ȘI ACTIVE
- străzile și piețele, pe lângă rolul de a asigura circulația trebuie considerate în primul rând ca spații de interacțiune socială
- realocarea spațiului disponibil pentru o folosire echitabilă pentru toți utilizatorii
- activarea unor suprafețe reziduale
- conectarea cartierului cu Bega
- crearea de spații pentru petrecerea timpului, sport și locuri de joacă
- încurajarea prezenței copiilor în spațiul public
Dezbateri
- Principii de amenajare - vegetație, suprafețe de călcare, mobilier urban, iluminat5 comentarii
- Str. Anton Pann și str. Titel Petrescu2 comentarii
- Str. Costache Negruzzi și str. Ion Mihalache4 comentarii
- Piața Petru Rareș și str. Zăvoi1 comentarii
- Bulevardul 3 August 19198 comentarii
- Str. Ion Luca Caragiale - Str. Marinescu - Piața Romanilor6 comentarii
- Legături auto, velo, pietonale și spații verzi0 comentarii
- Scuar Sinagogă și Piața Acad. Corneliu Micloși1 comentarii
- Piața Traian10 comentarii